Verkocht: Blockmekerstraat 86 Made — Vrijstaande woning

Algemeen:
| postcode: | 4921 ST |
| woonoppervlakte: | 92 m2 // exclusief 33 m2 overige inpandige ruimte |
| inhoud: | 462 m2 |
| perceeloppervlakte: | 395 m2 |
| bouwjaar: | 1989 |
Overdracht:
| vraagprijs: | Succesvol verkocht |
| aanvaarding: | In overleg |
Omschrijving:
Wat een heerlijk huis! Echt zo’n comfortabele gezinswoning, gelegen aan de rand van Made. De tuin is gelegen op het zuiden, er is een overkapping aanwezig, drie slaapkamers, de garage kun je feitelijk zien als woonruimte, een oprit voor meerdere auto's, en dat alles op 395 m² grond! De woning is in de afgelopen jaren grotendeels gemoderniseerd, met onder andere stucwerk, nieuwe HR++-beglazing, meterkast, zonnepanelen en een fraaie moderne keuken. Ben je nieuwsgierig geworden? Maak dan snel een afspraak om deze woning te komen bekijken!Indeling van de woning:
Globale indeling:
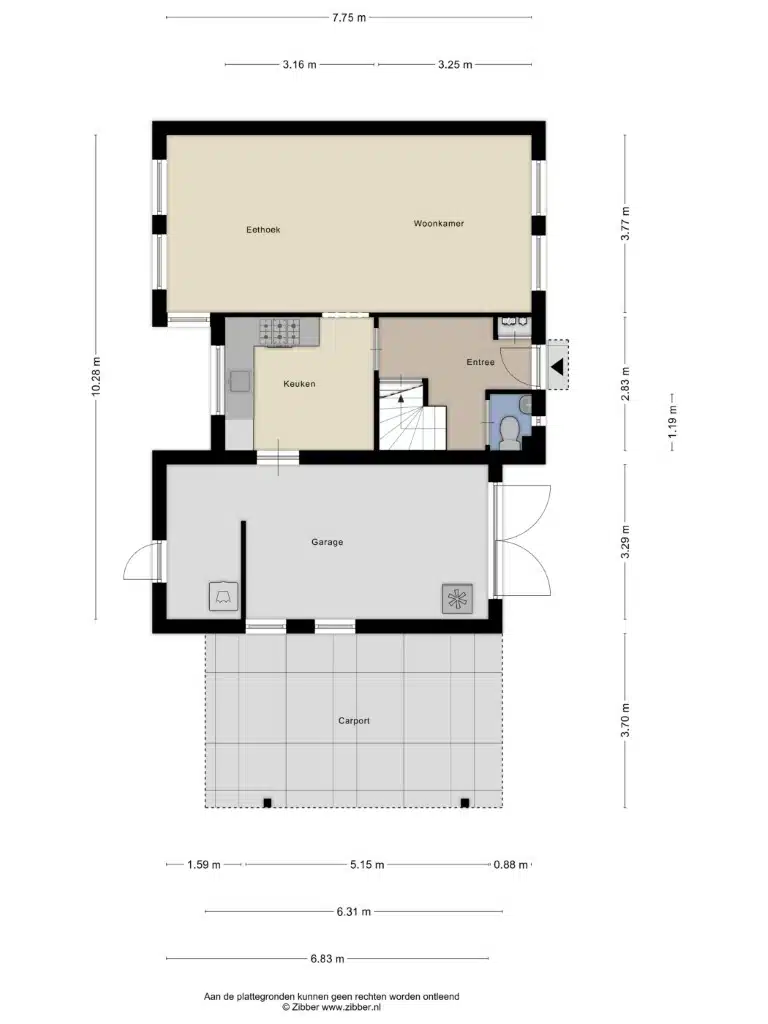
De begane grond:
Via de entree/hal kom je de woning binnen. Deze biedt toegang tot de keuken, het toilet, de meterkast en een bergkast.
Het toilet is half betegeld en voorzien van een fonteintje.
De meterkast is volledig vernieuwd en voorzien van 8 groepen en 2 aardlekschakelaars.
De keuken is in 2019 volledig vernieuwd. Deze staat in een hoekopstelling en is voorzien van een koelkast, grote oven, inductiekookplaat, vaatwasser en afzuigkap. Vanuit de keuken kijk je uit op de achtertuin en het achterliggende weiland.
Vanuit de keuken kom je in de woonkamer. Het betreft een doorzonwoonkamer met lichte wand- en plafondafwerking en een fraaie houten vloer.
Aan de andere kant van de keuken kom je in de (voormalige) garage. Deze is nu in gebruik als berging/bijkeuken. Hier bevinden zich de aansluiting voor de wasmachine, de cv-ketel en de omvormer van de zonnepanelen.
1e verdieping
Deze verdieping is voorzien van drie slaapkamers en de badkamer.
Slaapkamer 1: gelegen aan de achterzijde
Slaapkamer 2: gelegen aan de achterzijde
Slaapkamer 3: gelegen aan de voorzijde
De badkamer is voorzien van een ligbad, douchehoek, toilet en wastafel.
2e verdieping
Via een vlizotrap is een ruime bergzolder te bereiken.
In het kort:
– Fraai gelegen vrijstaande woning met garage;
– Het huis is grotendeels gemoderniseerd;
– 3 slaapkamers;
– Eigen opwekking van stroom door 7 zonnepanelen (2022);
– Er zal een ouderdomsclausule worden opgenomen;
– Oplevering in overleg met de verkoper;
Indien je vragen hebt over de verkoopdocumentatie of over jouw woonwensen, adviseren wij je deze tijdig te stellen aan Bogaers Makelaardij
Alle verstrekte informatie moet worden beschouwd als een uitnodiging tot het doen van een bod of om in onderhandeling te treden. Bogaers Makelaardij Made behartigt de belangen van de verkopende partij. Neem gerust jouw eigen NVM-aankoopmakelaar mee. Vanzelfsprekend staat het je vrij om, indien gewenst, een bouwkundige uit te nodigen de woning bouwkundig voor je te keuren teneinde jezelf een goed beeld te kunnen vormen van de bouwkundige staat van de woning.
In onze koopovereenkomsten dient de koper een bankgarantie/waarborgsom van 10% van de koopsom te stellen.
De vermelde oppervlakte (m²) en inhoud (m³) zijn vastgesteld conform de branchebrede NVM meetinstructie. Deze meetinstructie is bedoeld om een meer eenduidige manier van meten toe te passen voor het geven van een indicatie van de gebruiksoppervlakte. De meetinstructie sluit verschillen in meetuitkomsten niet uit, bijvoorbeeld door interpretatieverschillen, afrondingen of beperkingen bij het uitvoeren van de meting.
Vanaf 1 januari 2023 zijn makelaars wettelijk verplicht een biedlogboek bij te houden bij de verkoop van bestaande woningen (en wanneer de koper en/of de verkoper een particulier is). Biedingen kun je per die datum, en indien gewenst, nog steeds mondeling met ons bespreken maar dien je daarna digitaal aan ons te bevestigen via jouw MOVE-account. Het biedlogboek is niet van toepassing bij de verkoop van nieuwbouw, recreatiewoningen, bedrijfswoningen, garageboxen, bouwkavels, woon-/bedrijfspanden en (agrarische) bedrijfsobjecten zonder woonbestemming.
Bij het sluiten van een koopovereenkomst verklaar je je akkoord dat ondertekening van de koopovereenkomst eventueel digitaal plaatsvindt.
Deze informatie is met de nodige zorgvuldigheid samengesteld. Onzerzijds wordt echter geen enkele aansprakelijkheid aanvaard voor enige onvolledigheid, onjuistheid of anderszins, noch voor de gevolgen daarvan. De NVM-voorwaarden zijn van toepassing.
Woningtour:
Kenmerken
| aantal kamers: | 4 kamers / 3 slaapkamers |
| aantal badkamers: | 1 badkamer / 1 toilet |
| aantal woonlagen: | 2 woonlagen en een bergzolder |
| voorzieningen: | Zonnepanelen |
| tuin: | Zuid |
Energie:
| energielabel: | B |
| isolatie: | HR++ glas / muur / dak / vloer isolatie |
| verwarming: | CV ketel 2015 |