Verkocht: Fraaie hoekwoning met 5 slaapkamers Olmenpad 16

Algemeen:
| postcode: | 4921 DN |
| woonoppervlakte: | Circa 125 m2 |
| inhoud: | Circa 445 m3 |
| perceeloppervlakte: | 165 m2 |
Overdracht:
| vraagprijs: | VERKOCHT ONDER VOORBHOUD |
| aanvaarding: | In overleg |
Help je onze verkopers mee?
Deel deze prachtige woning dan op jouw Facebookpagina. Als de koper vanuit jouw timeline komt, maak je kans op een dinercheque te waarde van 50,– euro !
Omschrijving:
Met trots mogen wij je deze fraai gelegen hoekwoning presenteren. Het is een ideale gezinswoning met maar liefst 5 slaapkamers, grote berging en overkapping en gelegen in een kindvriendelijke woonwijk.Indeling van de woning:
Globale omschrijving van de woning:
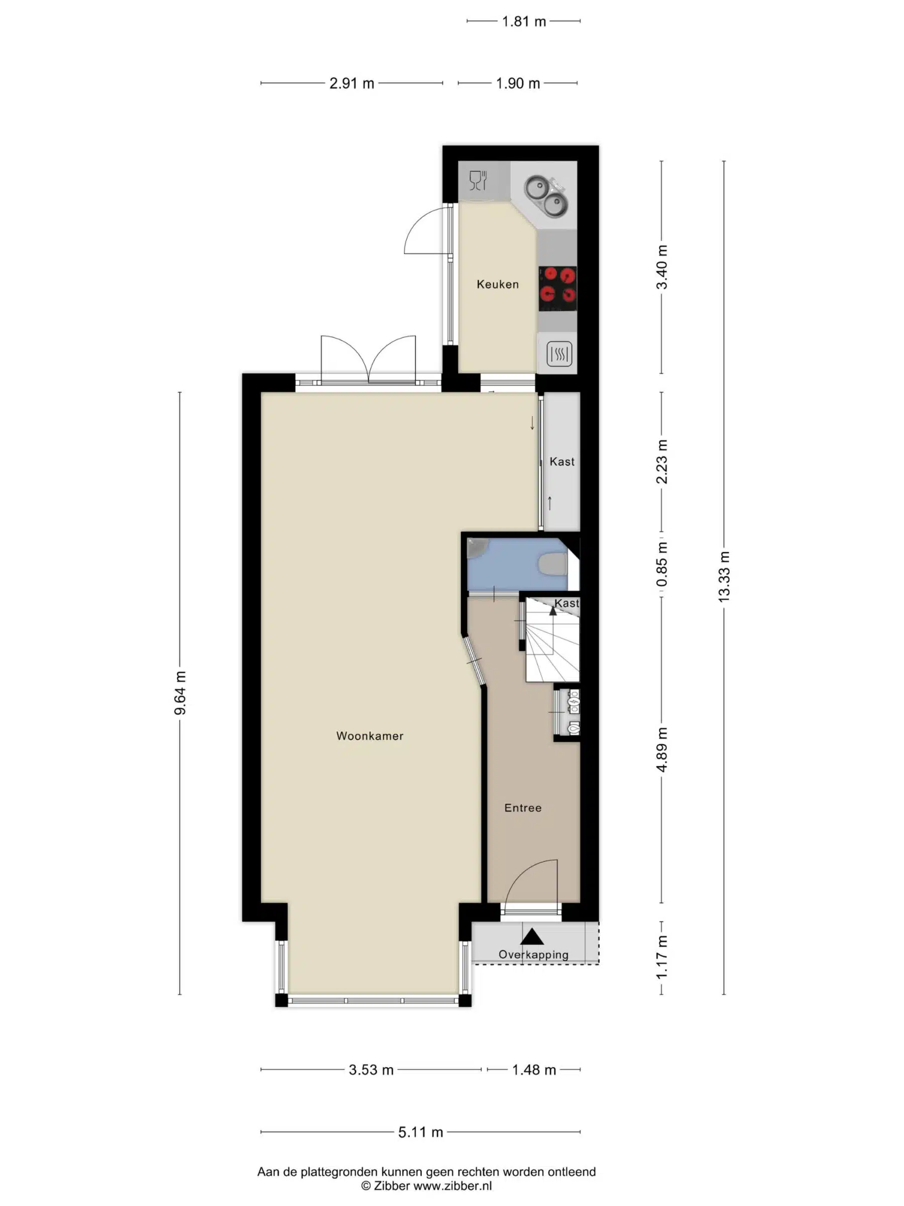
Begane grond:
Via de voordeur stap je de hal in. Hier bevindt zich de meterkast met meer dan voldoende groepen en aardlekschakelaars, toilet, trapopgang en loop je de woonkamer in.
Praktische toiletruimte met moderne tegelcombinatie en hangend sanitair
De woonkamer is ruim van opzet met een erker aan de voorzijde en openslaande tuindeuren aan de achterzijde. Er is een grote inbouwkastenwand aanwezig met veel praktische bergruimte.
Aan de achterzijde van het huis is de keuken gelegen. Deze is voorzien van een kookplaat, koelkast, combi oven diepvries, vaatwasser en een close in boiler
In de achtertuin is een fraaie overkapping gelegen. Deze is onder andere voorziening van een schuifdeur en een tv aansluiting waarbij het mogelijk is om de televisie achter een rolluik af te sluiten.
Achter de overkapping zijn de bergingen gelegen. Hier is er een van oorsprong een garage en heeft een electrische roldeur en de tweede is een aparte berging.
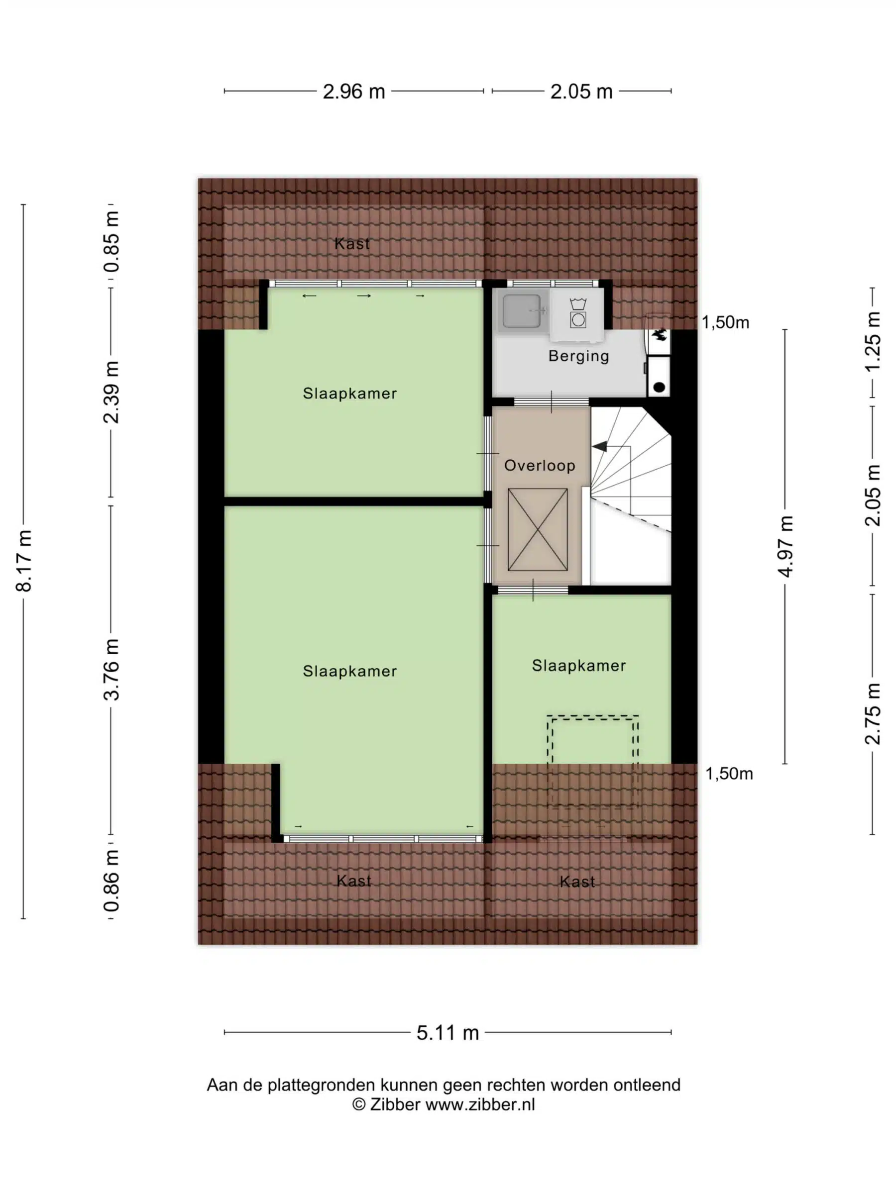
1e verdieping:
Deze verdieping is voorzien van ruim opgezette 3 slaapkamers.
De badkamer is voorzien van een ligbad, douche, wastafel en toilet.
2e verdieping:
2 slaapkamers welke zijn voorzien van een dakkapel
Een rumte die perfect kan dienen als kantoorruimte en is voorzien van een dakraam.
Een vierde ruimte met de opstelling van de wasmachine en de hr-CV ketel (2024).
3e verdieping:
Tot slot is er in de woning nog een vliering ruimte. Dit is een verrassend ruime bergzolder middels een vouwtrap te bereiken.
In het kort:
– Een leuk gelegen hoekwoning;
– 5 slaapkamers;
– 24 Zonnepanelen aanwezig;
– Fraaie berging gelegen aan de achterzijde;
– Privacy biedende onderhoudsarme achtertuin;
– Ideale gezinswoning voor mensen die ruimte en genoeg (slaap)kamers zoeken;
– Energielabel A;
– Oplevering in overleg met de verkopers;
– Indien je vragen hebt over de verkoopdocumentatie of over jouw woonwensen, adviseren wij je deze tijdig te stellen aan Bogaers Makelaardij.
Alle verstrekte informatie moet worden beschouwd als een uitnodiging tot het doen van een bod of om in onderhandeling te treden. Bogaers Makelaardij Made behartigt de belangen van de verkopende partij. Neem gerust jouw eigen NVM-aankoopmakelaar mee.
In onze koopovereenkomsten dient de koper een bankgarantie/waarborgsom van 10% van de koopsom te stellen.
De vermelde oppervlakte (m²) en inhoud (m³) zijn vastgesteld conform de branchebrede NVM meetinstructie. Deze meetinstructie is bedoeld om een meer eenduidige manier van meten toe te passen voor het geven van een indicatie van de gebruiksoppervlakte. De meetinstructie sluit verschillen in meetuitkomsten niet uit, bijvoorbeeld door interpretatieverschillen, afrondingen of beperkingen bij het uitvoeren van de meting.
Deze informatie is met de nodige zorgvuldigheid samengesteld. Onzerzijds wordt echter geen enkele aansprakelijkheid aanvaard voor enige onvolledigheid, onjuistheid of anderszins, noch voor de gevolgen daarvan. De NVM-voorwaarden zijn van toepassing.
–
Woningtour:
Kenmerken
| aantal kamers: | 7 kamers // 5 Slaapkamers |
| aantal badkamers: | Badkamer / toilet |
| aantal woonlagen: | 3 woonlagen (plus extra bergzolder) |
Energie:
| energielabel: | A |
| isolatie: | Dubbel glas |
| verwarming: | CV ketel 2024 |