Fraaie vrijstaande woning aan de Kalverstraat Made

Algemeen:
| postcode: | 4921 AS |
| woonoppervlakte: | Ca. 111 m2 |
| inhoud: | Ca. 413 m2 |
| perceeloppervlakte: | 372 m2 |
| bouwjaar: | 1972 |
Overdracht:
| vraagprijs: | 549.000,-- k.k. |
| aanvaarding: | In overleg |
Help je onze verkopers mee?
Deel deze prachtige woning dan op jouw Socials! Hoe meer het gedeeld wordt, des te beter het voor de verkopers is!
Omschrijving:
Ben je op zoek naar een ruime en rustig gelegen gezinswoning met een fijne tuin én een grote dubbele garage? Aan de Kalverstraat 87 in Made staat deze vrijstaande woning die precies dat biedt. Met drie slaapkamers, een extra kamer op zolder, een diepe achtertuin en een garage van ca. 55 m² is dit een ideale plek voor gezinnen én hobbyisten. Het huis heeft 3 slaapkamers, een fraaie badkamer en een zolderverdieping met een extra kamer welke is voorzien van een groot dakraam. De woning ligt centraal in Made, op loopafstand van supermarkten, winkels, horeca en andere voorzieningen. Een fijne, praktische woonlocatie met alles binnen handbereik.Indeling van de woning:
Globale indeling:
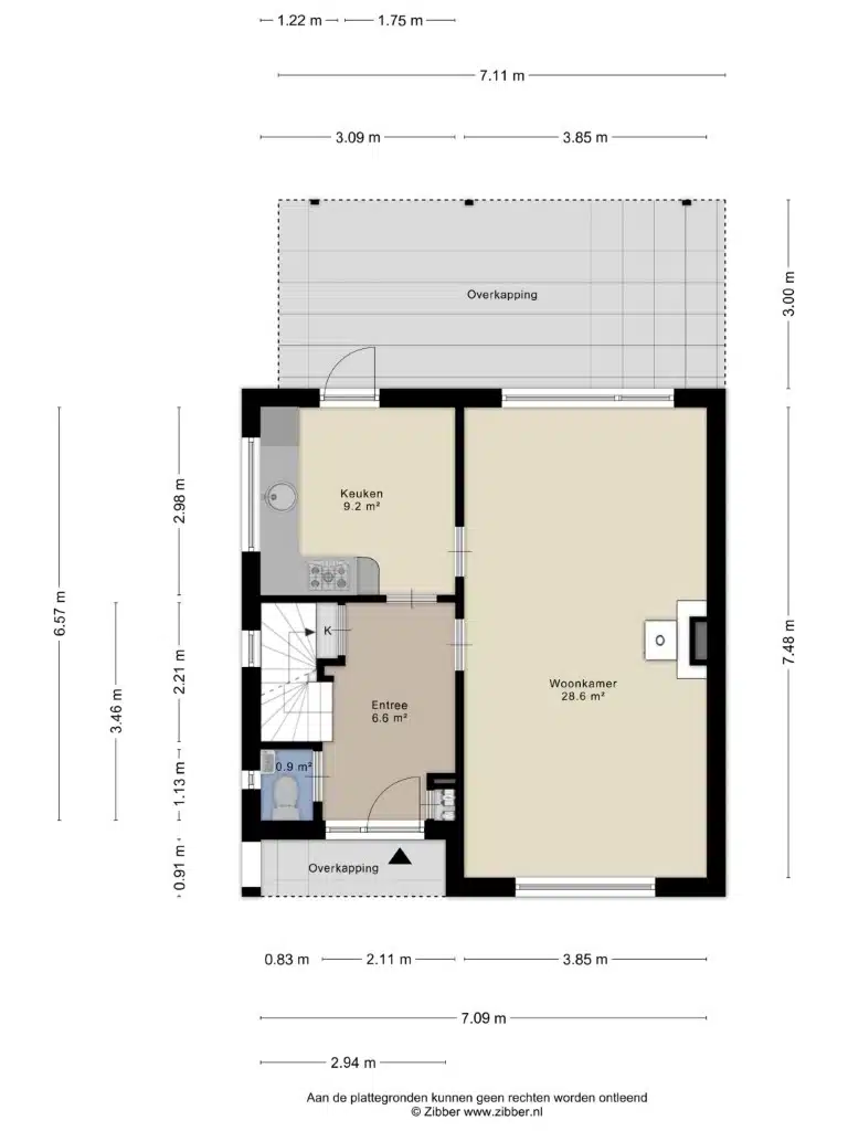
Begane grond:
Je komt binnen in de hal met meterkast, bergkast en toilet.
De woonkamer is een ruime doorzonwoonkamer met een prettige lichtinval. Er ligt een eikenhouten vloer en is er een houtkachel aanwezig.
De keuken is uitgerust met een koelkast, gaskookplaat, afzuigkap en combi-oven. Vanuit de keuken loop je zo de tuin in.
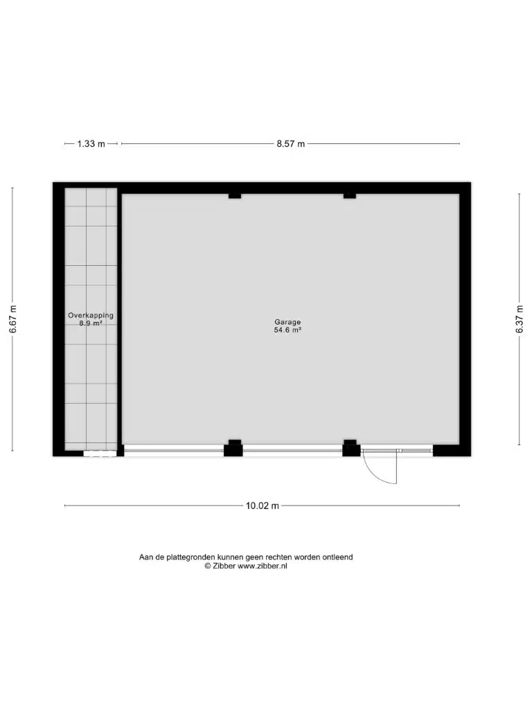
Aan de achterzijde van de woning is een fraaie overkapping gerealiseerd. De achtertuin ligt op het Westen en beschikt over de grote garage met een berging ernaast.
De garage heeft een oppervlakte van maar liefst ca. 55 m2! Een ideale ruimte voor iemand die van bijvoorbeeld sleutelen en/of klussen houdt.
1e verdieping:
Deze verdieping heeft drie ruime slaapkamers. In een van de slaapkamers staat momenteel de opstelling van de wasmachine.
De badkamer is voorzien van een douche, ligbad, wastafel en toilet.
2e verdieping:
Op de voorzolder bevindt zich de opstelling van de CV ketel (2005).
Daarnaast is hier een vierde (slaap)kamer aanwezig welke is voorzien van een groot dakraam.
In het kort
– Fijne gezinswoning met een goede basis
– Gelegen op een leuke locatie centraal in Made;
– Grote garage en een berging;
– Tuin op het Westen met een fraaie overkapping aan het huis;
– Oplevering in overleg met de verkoper (verwachting eind dit jaar);
Heb je vragen over de verkoopdocumentatie of over jouw woonwensen? Neem dan gerust contact op met Bogaers Makelaardij.
Plan direct online een afspraak in voor een bezichtiging:
Ga naar Contact ? Afspraak inplannen en kies voor Bezichtiging – Kalverstraat Made.
ALGEMEEN:
Alle verstrekte informatie moet worden beschouwd als een uitnodiging tot het doen van een bod of om in onderhandeling te treden. Bogaers Makelaardij Made behartigt de belangen van de verkopende partij. Neem gerust jouw eigen NVM-aankoopmakelaar mee. Vanzelfsprekend staat het je vrij om, indien gewenst, een bouwkundige uit te nodigen de woning bouwkundig voor je te keuren teneinde jezelf een goed beeld te kunnen vormen van de bouwkundige staat van de woning.
In onze koopovereenkomsten dient de koper een bankgarantie/waarborgsom van 10% van de koopsom te stellen.
De vermelde oppervlakte (m²) en inhoud (m³) zijn vastgesteld conform de branchebrede NVM meetinstructie. Deze meetinstructie is bedoeld om een meer eenduidige manier van meten toe te passen voor het geven van een indicatie van de gebruiksoppervlakte. De meetinstructie sluit verschillen in meetuitkomsten niet uit, bijvoorbeeld door interpretatieverschillen, afrondingen of beperkingen bij het uitvoeren van de meting. Vanzelfsprekend staat het je vrij om, indien gewenst om dit door een iedere deskundige voorafgaand de onderhandelingen te laten controleren.
Vanaf 1 januari 2023 zijn makelaars wettelijk verplicht een biedlogboek bij te houden bij de verkoop van bestaande woningen (en wanneer de koper en/of de verkoper een particulier is). Biedingen kun je per die datum, en indien gewenst, nog steeds mondeling met ons bespreken maar dien je daarna digitaal aan ons te bevestigen via jouw MOVE-account. Het biedlogboek is niet van toepassing bij de verkoop van nieuwbouw, recreatiewoningen, bedrijfswoningen, garageboxen, bouwkavels, woon-/bedrijfspanden en (agrarische) bedrijfsobjecten zonder woonbestemming.
Bij het sluiten van een koopovereenkomst verklaar je je akkoord dat ondertekening van de koopovereenkomst eventueel digitaal plaatsvindt.
Deze informatie is met de nodige zorgvuldigheid samengesteld. Onzerzijds wordt echter geen enkele aansprakelijkheid aanvaard voor enige onvolledigheid, onjuistheid of anderszins, noch voor de gevolgen daarvan. De NVM-voorwaarden zijn van toepassing.
Woningtour:
Kenmerken
| aantal kamers: | 5 kamers 4 slaapkamers |
| aantal badkamers: | 1 badkamer 1 toilet |
| aantal woonlagen: | 3 woonlagen |
| voorzieningen: | Overkapping |
| tuin: | Zuidwest |
Energie:
| isolatie: | Dubbel glas |
| verwarming: | CV ketel |