Verkocht: Hoekwoning met berging – Meidoornlaan 2 Made

Algemeen:
| postcode: | 4921 CC |
| woonoppervlakte: | 91 m2 |
| inhoud: | 260 |
| perceeloppervlakte: | 242 m2 |
| bouwjaar: | 1958 |
Overdracht:
| vraagprijs: | VERKOCHT ONDER VOORBEHOUD |
| aanvaarding: | In overleg, snel mogelijk |
Help je onze verkopers mee?
Deel deze prachtige woning dan op jouw Facebookpagina. Als de koper vanuit jouw timeline komt, maak je kans op een dinercheque te waarde van 50,– euro !
Omschrijving:
Ben je op zoek naar een leuke hoekwoning welke je volledig naar eigen smaak kunt maken? De woning is keurig netjes onderhouden echter aan een update toe. Een pareltje in de dop. Het huis is gelegen in de Meidoornlaan nabij het park van het gemeentehuis. Een fraaie centrale ligging met alle voorzieningen nabij gelegen met bijvoorbeeld de winkels in de Marktstraat zoals de Hema, Blokker, De Zeeman, Gebr. Van Dijk, slagerij Rasenberg, een bakkerij en de Jola. Uiteraard zijn er ook diverse horeca gelegenheden. De woning is gelegen op een perceel van 241 m2 en de achtertuin is gelegen op op het Westen. Aan de achterzijde is een recht van overpad voor het huis van de buurman.Indeling van de woning:
Algemene omschrijving van de woning:
Je komt binnen in de hal. Deze biedt toegang tot de woonkamer, toilet en kelderruimte.
Het toilet is in een lichte opstelling.
Onder de trap bevindt zich een kelderruimte.
De meterkast is voorzien van 4 groepen en 1 aardlekschakelaar
De keuken bevindt zich in de aanbouw aan de achterzijde van de woning in de uitbouw. Deze is voorzien van een gaskookplaat, afzuigkap en koelkast
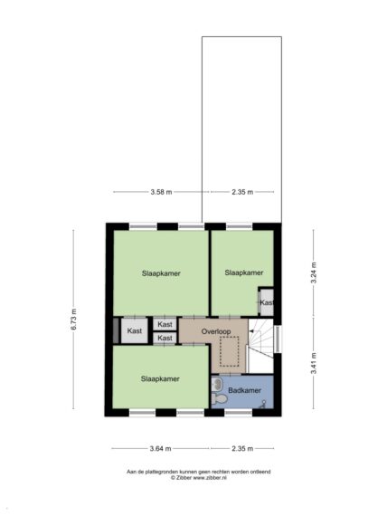
1e verdieping:
De eerste verdieping is voorzien van 3 slaapkamers en de badkamer.
– Slaapkamer 1 is gelegen aan de achterzijde en circa is 8 m2
– Slaapkamer 2 is gelegen aan voorzijde en circa 12 m2;
– Slaapkamer 3 is gelegen aan de achterzijde en tevens circa 12 m2.
Alle slaapkamers zijn voorzien van vaste kasten.
Badkamer welke is voorzien van een douche, wastafel en toilet
2e verdieping:
Middels een schuiftrap is er een fraaie bergzolder.
Algemeen:
– Goed onderhouden hoekwoning welke een update kan gebruiken;
– Gelegen nabij het centrum van Made
– Fraai perceel van 241 m2
– De woning is aan de achterzijde uitgebouwd;
– Oplevering in onderling overleg, dit kan snel.
Indien je vragen hebt over de verkoopdocumentatie of over jouw woonwensen, dan adviseren wij je deze tijdig te stellen aan Bogaers Makelaardij.
Alle verstrekte informatie moet beschouwd worden als een uitnodiging tot het doen van een bod of om in onderhandeling te treden. Bogaers Makelaardij Made behartigt de belangen van de verkopende partij. Neem gerust jouw eigen NVM-aankoopmakelaar mee.
In onze koopovereenkomsten dient koper een bankgarantie/waarborgsom te stellen van 10% van de koopsom.
De vermelde oppervlakte (m2) en inhoud (m3) zijn vastgesteld conform de branchebrede NVM meetconstructie. Deze Meetinstructie is bedoeld om een meer eenduidige manier van meten toe te passen voor het geven van een indicatie van de gebruiksoppervlakte. De Meetinstructie sluit verschillen in meetuitkomsten niet uit, door bijvoorbeeld interpretatieverschillen, afrondingen of beperkingen bij het uitvoeren van de meting.
Deze informatie is door ons met de nodige zorgvuldigheid samengesteld. Onzerzijds wordt echter geen enkele aansprakelijkheid aanvaard voor enige onvolledigheid, onjuistheid of anderszins, dan wel de gevolgen daarvan. Van toepassing zijn de NVM voorwaarden.
Kenmerken
| aantal kamers: | 4 kamers, 3 slaapkamers |
| aantal badkamers: | 1 Badkamer |
| aantal woonlagen: | 3 |
Energie:
| isolatie: | Geen. |
| verwarming: | Cv ketel verwarming / geiser voor warm water |