Verkocht: Fraaie hoekwoning met overkapping en berging in Made

Algemeen:
| postcode: | 4921 JD |
| woonoppervlakte: | 106 m2 |
| inhoud: | 345 m3 |
| perceeloppervlakte: | 143 |
| bouwjaar: | 1964 |
Overdracht:
| vraagprijs: | 309.000,-- k.k. |
| aanvaarding: | In overleg |
Help je onze verkopers mee?
Deel deze prachtige woning dan op jouw Facebookpagina. Als de koper vanuit jouw timeline komt, maak je kans op een dinercheque te waarde van 50,– euro !
Omschrijving:
De sleutel krijgen en wonen. Dat zou toch fijn zijn? Hier kan het! Misschien een likje verf om het naar je eigen smaak te maken maar geen grote verbouwingen. Deze fraaie hoekwoning is keurig netjes en luxe afgewerkt. Er is een uitbouw aanwezig over 2 verdiepingen. Het huis is gelegen aan de Cyclaamstraat in Made. Niet direct aan de weg maar met groen voor je huis en aan de zijkant bevinden zich een aantal parkeerplaatsen. De woning is zeer gunstig gelegen ten op zichte van het bruisende Madese Centrum met de winkels en horeca gelegenheden. Een boodschap vergeten is niet erg want de Albert Heijn is op loopafstand. Om het plaatje compleet te maken is er in de achtertuin een overkapping gelegen in combinatie met een berging. Tevens is een zijpoort aanwezig.Indeling van de woning:
Globale indeling:
BEGANE GROND:
Hal/entree met kelderkast, vernieuwde groepenkast, een nette moderne toiletgelegenheid met wandcloset en fonteintje, trapopgang naar 1e verdieping.
De woonkamer is in een gezellige L-vorm en voorzien van een rookkanaal, laminaat vloer, stucwerk wanden en plafond. Het zijraam zorgt voor extra lichtinval.
Dichte leefkeuken met luxe keukeninrichting (’15) voorzien van diverse inbouwapparatuur zoals een vaatwasser, koel/vriescombinatie, combi magnetron, kookplaat en afzuigkap.
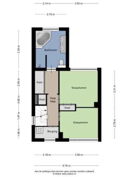
1e VERDIEPING:
Hier bevinden zich 2 slaapkamers, wasruimte, grote kastenwand en de badkamer
Slaapkamer 1 is gelegen aan de voorzijde en is circa 10 m2;
Slaapkamer 2 is gelegen aan de achterzijde en is circa 11,75 m2.
Door de uitbouw aan de achterzijde is de badkamer hier naar toe verplaatst waardoor de “oude doucheruimte” nu is ingericht als wasruimte met de opstelling van de wasmachine / droger.
De riante en luxe uitgevoerde badkamer is voorzien van een groot hoekbad, inloopdouche, dubbele vaste wastafel en wandcloset. Dit is 2016 gerealiseerd.
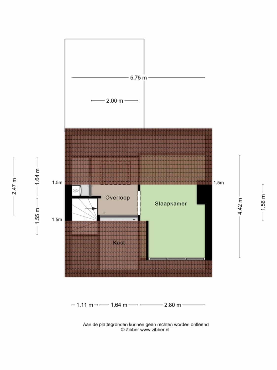
2e VERDIEPING:
Middels vaste trap te bereiken voorzolder, hier bevindt zich de cv-combiketel (’15 wordt gehuurd) .
“Open” zolderkamer met dakkapel.
ALGEMEEN:
– De achtertuin is gelegen op Noord, bijna volledig bestraat en voorzien van een fraaie overkapping en een berging.
– Ideale ligging ten op zichte van het centrum, Albert Heijn, basisschool de Stuifhoek en de sportvelden;
– Uitbouw aanwezig over 2 verdiepingen;
– 2 slaapkamers en een zolderruimte wat als extra slaapkamer gebruikt kan worden;
– Oplevering in overleg;
Indien je vragen hebt over de verkoopdocumentatie of over jouw woonwensen, dan adviseren wij je deze tijdig te stellen aan Bogaers Makelaardij.
Alle verstrekte informatie moet beschouwd worden als een uitnodiging tot het doen van een bod of om in onderhandeling te treden. Bogaers Makelaardij Made behartigt de belangen van de verkopende partij. Neem gerust jouw eigen NVM-aankoopmakelaar mee.
In onze koopovereenkomsten dient koper een bankgarantie/waarborgsom te stellen van 10% van de koopsom.
De vermelde oppervlakte (m2) en inhoud (m3) zijn vastgesteld conform de branchebrede NVM meetconstructie. Deze Meetinstructie is bedoeld om een meer eenduidige manier van meten toe te passen voor het geven van een indicatie van de gebruiksoppervlakte. De Meetinstructie sluit verschillen in meetuitkomsten niet uit, door bijvoorbeeld interpretatieverschillen, afrondingen of beperkingen bij het uitvoeren van de meting.
Deze informatie is door ons met de nodige zorgvuldigheid samengesteld. Onzerzijds wordt echter geen enkele aansprakelijkheid aanvaard voor enige onvolledigheid, onjuistheid of anderszins, dan wel de gevolgen daarvan. Van toepassing zijn de NVM voorwaarden.
–
Woningtour:
Kenmerken
| aantal kamers: | 4 kamers 3 slaapkamers |
| aantal badkamers: | 1 luxe badkamer |
| aantal woonlagen: | 3 woonlagen. |
| voorzieningen: | Overkapping. |
| tuin: | Noord. |
Energie:
| energielabel: | D |
| isolatie: | Dubbel glas |
| verwarming: | CV ketel (Huur) |