Instapklare 3-1 kapwoning De Gijster 56 Made

Algemeen:
| postcode: | 4921 NK |
| woonoppervlakte: | Ca. 124 m2 exclusief serre 35 m2 |
| inhoud: | Ca. 517 m3 |
| bouwjaar: | 1997 |
Overdracht:
| vraagprijs: | 529.000,-- k.k. |
| aanvaarding: | In overleg |
Omschrijving:
Met trots presenteren wij jullie de woning aan de Gijster 56 in Made! Een zeer fraaie 3/1 kapwoning met teveel om op te noemen: - Garage; - Eigen oprit; - Uitbouw aan de achterzijde; - Vier slaapkamers; - Grote serre (circa 35 m2); - Een uitbouw boven de garage; - Strakke moderne witte keuken; - Sfeervolle gashaard in de woonkamer; - Volledig voorzien van elektrisch bedienbare rolluiken; - Een gloednieuwe badkamer, - Fraai kunstgrasveld; - Airco installatie; - Erker aan de voorzijde van de woning; - Zonnepanelen; - Een hybride warmtepomp; - - Energielabel A; Zoals je ziet is er van het oorspronkelijke huis uit 1997 niet veel meer over. Er is steeds op een goede wijze in de woning geinvesteerd om het woongenot te verbeteren met dit als het huidige eindresultaat. Het is met recht een zeer fraaie instapklare woning. De Gijster is een rustige straat in een kindvriendelijke woonwijk. Het huis is leuk gelegen met schuin aan de voorzijde een speeltuintje. Je hebt een eigen parkeerplaats voor de garage. De voorzieningen zoals winkels en horeca zijn op een korte afstand gelegen.Indeling van de woning:
Omschrijving woning:
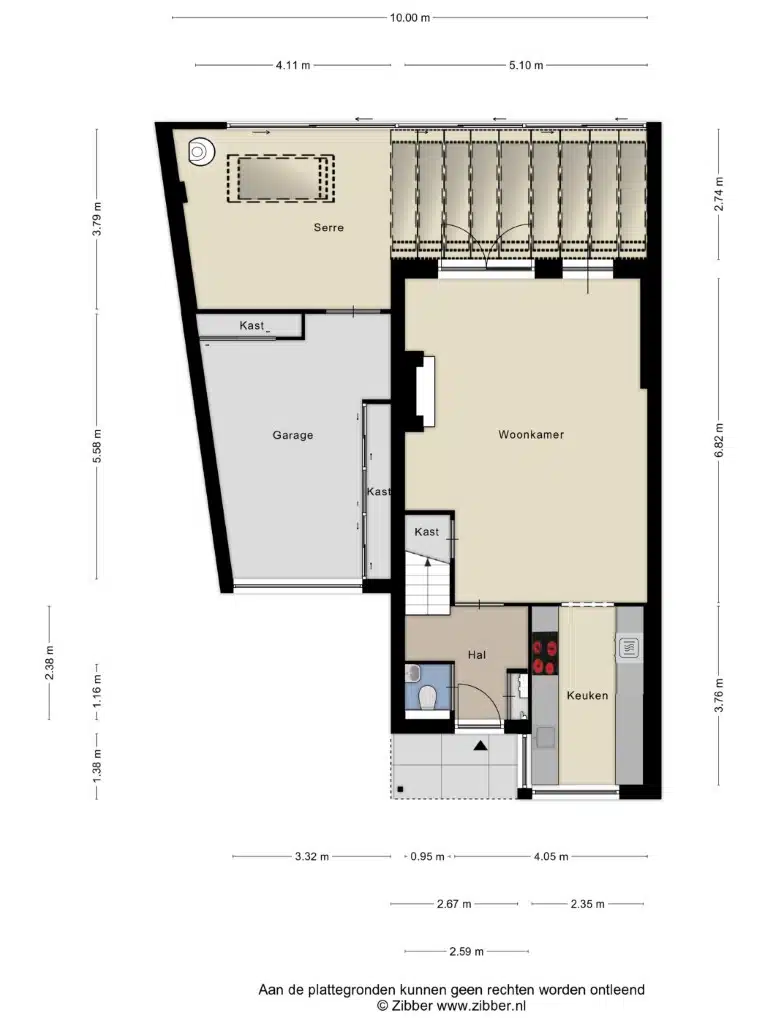
Achter de voordeur ligt de hal met het toilet, de meterkast, trapopgang en de toegang naar de woonkamer.
Het toilet is volledig betegeld, voorzien van hangend sanitair en een wastafel.
De woonkamer is aan de achterzijde uitgebouwd en hiermee dus extra ruim van opzet. Om het plaatje compleet te maken is er aan de achterzijde over de volledige breedte een serre geplaatst. Deze is volledig af te sluiten en voorzien van een allesbrander (ter overname). De totale oppervlakte is circa 35 m2 en je kunt het eigenlijk zien als een 2e woonkamer. In elke periode van het jaar kun je hier heerlijk zitten.
Aan de voorzijde van de woning is de keuken gelegen. Deze is in 2016 vernieuwd en is er een erker geplaatst om de keuken te vergroten. Het is voorzien van een vaatwasser, extra grote kookplaat, afzuigkap, een oven en een koelkast.
Vanuit de serre is de garage te bereiken Deze is voorzien van warm en koud water, een electrische roldeur en is circa 21 m2 groot.
1e verdieping:
Deze verdieping heeft 3 slaapkamers en de badkamer.
Slaapkamer 1 is aan de voorzijde van de woning gelegen.
Slaapkamer 2 is aan de achterzijde van de woning gelegen.
Slaapkamer 3 was van oorsprong “het kleine slaapkamertje”. Dit is in de loop der jaren veranderd. Ze hebben namelijk boven de garage een grote slaapkamer gecreeerd. Het kleine slaapkamertje is hiermee de doorgang geworden en nu in gebruik als kantoorruimte. De slaapkamer is voorzien van een grote vaste kastenwand, diverse bergruimte en de airco installatie.
De badkamer is compleet vernieuwd. Deze is voorzien van een fraaie douchehoek (met speciaal antikalkaanslag glas), toilet, designradiator, spiegel en een dubbele wastafel met meubel.
2e verdieping:
Hier bevindt zich slaapkamer 4 welke is voorzien van een dakkapel en diverse bergruimte.
In een vaste kastenwand bevindt zich de opstelling van de CV ketel ( Vaillant Eco Tec Plus uit 2020) en de hybride warmtepomp (Remeha Elga Ace 4 Hybride uit 2023).
Algemeen:
– Leuke ligging in een kindvriendelijke woonwijk;
– Totale oppervlakte gebruiksoppervlakte van 157 m2 excl garage;
– Zonnepanelen en hybride warmte pomp aanwezig;
– Keurig nette en moderne afwerking;
– Energielabel A;
– Oplevering is overleg;
Plan direct je afspraak in via onze website, kies bezichtiging en De Gijster 56.
Indien je vragen hebt over de verkoopdocumentatie of over jouw woonwensen, dan adviseren wij je deze tijdig te stellen aan Bogaers Makelaardij.
Alle verstrekte informatie moet beschouwd worden als een uitnodiging tot het doen van een bod of om in onderhandeling te treden. Bogaers Makelaardij Made behartigt de belangen van de verkopende partij. Neem gerust jouw eigen NVM-aankoopmakelaar mee.
In onze koopovereenkomsten dient koper een bankgarantie/waarborgsom te stellen van 10% van de koopsom.
De vermelde oppervlakte (m2) en inhoud (m3) zijn vastgesteld conform de branchebrede NVM meetconstructie. Deze Meetinstructie is bedoeld om een meer eenduidige manier van meten toe te passen voor het geven van een indicatie van de gebruiksoppervlakte. De Meetinstructie sluit verschillen in meetuitkomsten niet uit, door bijvoorbeeld interpretatieverschillen, afrondingen of beperkingen bij het uitvoeren van de meting.
Deze informatie is door ons met de nodige zorgvuldigheid samengesteld. Onzerzijds wordt echter geen enkele aansprakelijkheid aanvaard voor enige onvolledigheid, onjuistheid of anderszins, dan wel de gevolgen daarvan. Van toepassing zijn de NVM voorwaarden.
Is je interesse gewekt en ben je benieuwd hoe de woning voor jou werkelijk aanvoelt, dan is een real live bezichtiging de volgende stap. Aarzel niet en bel of mail ons voor een vrijblijvende bezichtiging.
Woningtour:
Kenmerken
| aantal kamers: | 5 kamers / 4 slaapkamers |
| aantal badkamers: | 1 badkamer / 1 toilet |
| aantal woonlagen: | 3 Woonlagen |
| voorzieningen: | Serre aanbouw, |
| tuin: | Oost |
Energie:
| energielabel: | A |
| isolatie: | Volledig geisoleerd |
| verwarming: | Hybride Warmtepomp |