Verkocht: Irisstraat 16 Made

Algemeen:
| postcode: | 4921 HG |
| woonoppervlakte: | 100 m2 |
| inhoud: | 305 m3 |
| perceeloppervlakte: | 152 m2 |
| bouwjaar: | 1967 |
Overdracht:
| vraagprijs: | 209.000,-- k.k. |
| aanvaarding: | In overleg |
Helpt u onze verkopers mee?
Deel deze prachtige woning dan op uw Facebookpagina. Als de koper vanuit uw timeline komt, maakt u kans op een lekkere dinercheque te waarde van 50,– euro !
Omschrijving:
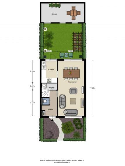
Deze heerlijke eengezinswoning is gelegen in een prima woonwijk. De woning kenmerkt zich door een zeer praktische indeling voor een gezin met kinderen: 4 slaapkamers en een grote bergzolder. Hier is tevens een vijfde slaapkamer te realiseren. De tuin aan de achterzijde is keurig netjes aangelegd, met een leuk terras en een grote vijver partij. Dichtbij in de omgeving is een basisschool (de Stuifhoek) en voor de dagelijkse boodschappen is de beste Albert Heijn van Nederland op loopafstand. In nog geen 10 fietsminuten zit u in het bruisende centrum van Made. De buurt is een mengeling van jong en oud.Indeling van de woning:
Begane grond:Â
De entree hal met de meterkast ( 5 groepen 2 aardlekschakelaars) en het toilet. Vanuit de hal kunt u de woonkamer en de keuken betreden. De woonkamer is van het type doorzon en heeft een oppervlakte van ca. 3,50m X 7,75 m.Â
De keuken is gelegen aan de achterzijde en onder andere voorzien van een koelkast, gaskookplaat, vaatwasser en koelkast.Â
De gehele begane grondvloer kenmerkt zich door veel lichtinval en is voorzien van een zeer fraaie en degelijke laminaatvloer.Â
Over de gehele breedte van de achtertuin is een berging aanwezig. Deze is voorzien van elektra en een achteruitgang.Â
1e verdieping:Â
Deze verdieping heeft 4 slaapkamers en de badkamer welke is voorzien van een douche en een wastafel. Tevens is er een vaste trap naar de zolderruimte.Â
Slaapkamer I: Afmetingen: 3,50 m X 3,30 mÂ
Slaapkamer II Afmetingen: 3,50 m X 3,15 mÂ
Slaapkamer III Afmetingen: 2,50 m X 2,10 mÂ
Slaapkamer IV Afmetingen: 3,15 m X 2,10 mÂ
2e verdieping:Â
Een grote bergzolder welke is voorzien van 2 dakramen, en de opstelling van de CV – ketel (Nefit HR Turbo1995) + boiler. Van deze ruimte is een slaapkamer te maken.
Indien je vragen hebt over de verkoopdocumentatie of over jouw woonwensen, dan adviseren wij je deze tijdig te stellen aan Bogaers Makelaardij.Â
Alle verstrekte informatie moet beschouwd worden als een uitnodiging tot het doen van een bod of om in onderhandeling te treden. Bogaers Makelaardij Made behartigt de belangen van de verkopende partij. Neem gerust jouw eigen NVM-aankoopmakelaar mee.Â
In onze koopovereenkomsten dient koper een bankgarantie/waarborgsom te stellen van 10% van de koopsom.Â
De vermelde oppervlakte (m2) en inhoud (m3) zijn vastgesteld conform de branchebrede NVM meetconstructie. Deze Meetinstructie is bedoeld om een meer eenduidige manier van meten toe te passen voor het geven van een indicatie van de gebruiksoppervlakte. De Meetinstructie sluit verschillen in meetuitkomsten niet uit, door bijvoorbeeld interpretatieverschillen, afrondingen of beperkingen bij het uitvoeren van de meting.Â
Deze informatie is door ons met de nodige zorgvuldigheid samengesteld. Onzerzijds wordt echter geen enkele aansprakelijkheid aanvaard voor enige onvolledigheid, onjuistheid of anderszins, dan wel de gevolgen daarvan. Van toepassing zijn de NVM voorwaarden.
Woningtour:
Kenmerken
| aantal kamers: | 5 kamers, 4 slaapkamers |
| aantal badkamers: | 1 Badkamer |
| aantal woonlagen: | 3 woonlagen |
| voorzieningen: | Rolluiken |
| tuin: | Oosten |
Energie:
| isolatie: | Gedeeltelijk dubbel glas |
| verwarming: | CV Ketel |