Verkocht: Vrijstaande kluswoning met riant perceel en garage — Fresiastraat 62 Made

Algemeen:
| postcode: | 4921 HD |
| woonoppervlakte: | Circa 94 m2 / exclusief zolderruimte 14 m2 |
| inhoud: | Circa 398 m3 |
| perceeloppervlakte: | 552 m2 |
| bouwjaar: | 1967 |
Overdracht:
| vraagprijs: | VERKOCHT ONDER VOORBEHOUD |
| aanvaarding: | In overleg, kan snel |
Help je onze verkopers mee?
Deel deze prachtige woning dan op jouw Facebookpagina. Als de koper vanuit jouw timeline komt, maak je kans op een dinercheque te waarde van 50,– euro !
Omschrijving:
Ben je op zoek naar een leuk gelegen vrijstaande woning met een groot perceel dat je volledig naar jouw eigen wens kunt maken? Dan moet je absoluut hier komen kijken aan de Fresiastraat 62. In het algemeen is de woning in de loop der jaren netjes bijgehouden en bijvoorbeeld voorzien van (grotendeels) dubbel glas en rolluiken maar is de woning qua interne afwerking (zoals keuken en badkamer) blijven hangen in de tijd. Een ideale kans dus om hier lekker los te gaan om er helemaal jouw eigen woning van te maken!Indeling van de woning:
Globale indeling:
Via de entree hal kom je de woning binnen. Deze biedt toegang aan de keuken, het toilet, meterkast en de kelder.
Het toilet is half betegeld en voorzien van een fonteintje.
Via de hal kom je in de keuken. Deze is eenvoudig van opzet. Aan de achterzijde vanuit de keuken kom je in de bijkeuken van de woning.
De woonkamer betreft een doorzonwoonkamer met een houtkachel.
In de hal, onder de trap, bevindt zich een kelderkast.
In de achtertuin is een garage gelegen welke nog is voorzien van een verdieping voor extra opslag van spullen. Daarnaast is er een houten berging / tuinhuis.
1e verdieping:
Deze verdieping is voorzien van drie slaapkamers en de badkamer.
Slaapkamer 1 Gelegen aan de achterzijde;
Slaapkamer 2 Gelegen aan de achterzijde en biedt toegang tot het platte dak;
Slaapkamer 3 Gelegen aan de voorzijde;
De badkamer is voorzien van een zitbad / douche combinatie en een wastafel.
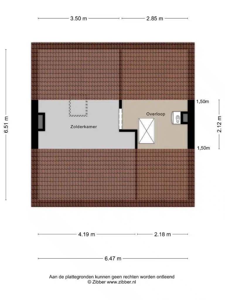
2e verdieping:
Via een schuiftrap is een bergzolder te bereiken. Hier bevind zich de CV – installatie.
In het kort:
– Fraai gelegen vrijstaande woning met garage;
– Er dient rekening te worden gehouden met modernisatie;
– 3 slaapkamers;
– Groot perceel van ruim 550 m2;
– Er zal een niet zelf bewoningsclausule alsmede de ouderdomclausule worden opgenomen;
– Oplevering in overleg met de verkoper, kan snel;
– Indien je vragen hebt over de verkoopdocumentatie of over jouw woonwensen, adviseren wij je deze tijdig te stellen aan Bogaers Makelaardij.
Alle verstrekte informatie moet worden beschouwd als een uitnodiging tot het doen van een bod of om in onderhandeling te treden. Bogaers Makelaardij Made behartigt de belangen van de verkopende partij. Neem gerust jouw eigen NVM-aankoopmakelaar mee. Vanzelfsprekend staat het je vrij om, indien gewenst, een bouwkundige uit te nodigen de woning bouwkundig voor je te keuren teneinde jezelf een goed beeld te kunnen vormen van de bouwkundige staat van de woning.
In onze koopovereenkomsten dient de koper een bankgarantie/waarborgsom van 10% van de koopsom te stellen.
De vermelde oppervlakte (m²) en inhoud (m³) zijn vastgesteld conform de branchebrede NVM meetinstructie. Deze meetinstructie is bedoeld om een meer eenduidige manier van meten toe te passen voor het geven van een indicatie van de gebruiksoppervlakte. De meetinstructie sluit verschillen in meetuitkomsten niet uit, bijvoorbeeld door interpretatieverschillen, afrondingen of beperkingen bij het uitvoeren van de meting.
Vanaf 1 januari 2023 zijn makelaars wettelijk verplicht een biedlogboek bij te houden bij de verkoop van bestaande woningen (en wanneer de koper en/of de verkoper een particulier is). Biedingen kun je per die datum, en indien gewenst, nog steeds mondeling met ons bespreken maar dien je daarna digitaal aan ons te bevestigen via jouw MOVE-account. Het biedlogboek is niet van toepassing bij de verkoop van nieuwbouw, recreatiewoningen, bedrijfswoningen, garageboxen, bouwkavels, woon-/bedrijfspanden en (agrarische) bedrijfsobjecten zonder woonbestemming.
Bij het sluiten van een koopovereenkomst verklaar je je akkoord dat ondertekening van de koopovereenkomst eventueel digitaal plaatsvindt.
Deze informatie is met de nodige zorgvuldigheid samengesteld. Onzerzijds wordt echter geen enkele aansprakelijkheid aanvaard voor enige onvolledigheid, onjuistheid of anderszins, noch voor de gevolgen daarvan. De NVM-voorwaarden zijn van toepassing.
Woningtour:
Kenmerken
| aantal kamers: | 4 kamers / 3 slaapkamers |
| aantal badkamers: | 1 badkamer / 1 toilet |
| aantal woonlagen: | 3 woonlagen |
| voorzieningen: | Rolluiken |
| tuin: | Noord |
Energie:
| energielabel: | F |
| isolatie: | Dubbel glas |
| verwarming: | CV ketel / boiler / geiser |