Verkocht: Vrijstaande woning met dubbele garage Lage Zwaluwe

Algemeen:
| postcode: | 4926HB |
| woonoppervlakte: | 168 m2 |
| inhoud: | 625 |
| perceeloppervlakte: | 965 |
| bouwjaar: | 1989 |
Overdracht:
| vraagprijs: | 595.000,-- k.k. |
| aanvaarding: | In overleg |
Help je onze verkopers mee?
Deel deze prachtige woning dan op jouw Facebookpagina. Als de koper vanuit jouw timeline komt, maak je kans op een dinercheque te waarde van 50,– euro !
Omschrijving:
Ben je op zoek naar een echte gezinswoning? Dan moet je hier aan de Griendwerkerstraat 60 komen kijken. Een zeer ruime opgezette vrijstaande woning met een dubbele garage en een fraai perceel van 965 m2! Door de hoekligging en de aankoop van een extra stuk tuingrond heb je veel privacy. De tuin is onder architectuur aangelegd en heeft thans een vrij uitzicht aan de achterzijde. De garage heeft een zelfde bouwvorm als het woonhuis. Deze is ruim van opzet en biedt plaats aan 2 auto's. Er is een verdieping aanwezig waardoor je nog meer bergruimte hebt. Voor de garage kun je op eigen terrein meerdere auto's kwijt. Lage Zwaluwe is zeer gunstig gelegen ten op zichte van de snelweg A-16 en heeft een eigen treinstation. Je bent dus zo in bijvoorbeeld Breda of Rotterdam. Door de ligging aan de Biesbosch is het een natuurrijke omgeving. In het dorp is een Jumbo supermarkt aanwezig. Een ideale woonplaats als je houdt van het dorpse karakter, rust en ruimte en toch dicht bij de grote steden wil wonen.Indeling van de woning:
Begane grond:
Als je de voordeur in stapt kom je gelijk in een fraaie lichte hal met een vide voor een extra ruimte effect.
De woonkamer is zeer ruim van opzet in een L-vorm. Deze is tuingericht en voorzien van openslaande tuindeuren. Er is een open haard aanwezig (in 2021 geveegd) wat zorgt voor extra gezelligheid en heerlijke warmte in de wintermaanden. Op de vloer ligt een visgraatparket vloer.
De keuken is voorzien van veel kast-, en werkruimte, oven, grote 6 pits gaskookplaat en een afzuigkap.
Aan de achterzijde bevindt zich een bijkeuken met de opstelling van de CV – ketel en de wasmachine en droger aansluiting.
Er is een slaapkamer op de begane grond aanwezig. Deze is voorzien van een eigen doucheruimte met een wastafel. Ideaal voor gasten of juist om thuis te werken.
Het toilet is volledig betegeld en voorzien van een fonteintje.
—
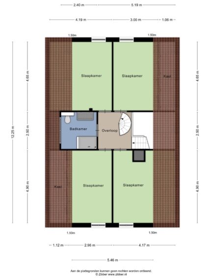
1e verdieping:
Deze verdieping is voorzien van een fraaie vide, 4 slaapkamers en de badkamer;
De 4 slaapkamers zijn vanaf de overloop gelegen aan de linker en rechterzijde van de woning.
Slaapkamer 1 & 2 zijn circa 15 m2 groot;
Slaapkamer 3 & 4 zijn circa 14 m2 groot;
De badkamer is netjes afgewerkt en voorzien van een douche, toilet en een wastafelmeubel. Vanuit het raam kijk je de verte in.
2e verdieping:
De 2e verdieping is te bereiken via een vaste spiltrap. Dit is een ideale bergzolder over de gehele breedte van de woning.
Algemeen:
– Het betreft een ruim opgezette vrijstaande woning met maar liefst 5 slaapkamers;
– De achtertuin is onder architectuur aangelegd en heeft een fraai uitzicht aan de achterzijde;
– De woning is zeer goed onderhouden;
– Er is een grote dubbele garage aanwezig welke tevens is voorzien van een grote bergzolder;
– Ideale gezinswoning;
– Oplevering is in overleg;
Indien je vragen hebt over de verkoopdocumentatie of over jouw woonwensen, dan adviseren wij je deze tijdig te stellen aan Bogaers Makelaardij.
Alle verstrekte informatie moet beschouwd worden als een uitnodiging tot het doen van een bod of om in onderhandeling te treden. Bogaers Makelaardij Made behartigt de belangen van de verkopende partij. Neem gerust jouw eigen NVM-aankoopmakelaar mee.
In onze koopovereenkomsten dient koper een bankgarantie/waarborgsom te stellen van 10% van de koopsom.
De vermelde oppervlakte (m2) en inhoud (m3) zijn vastgesteld conform de branchebrede NVM meetconstructie. Deze Meetinstructie is bedoeld om een meer eenduidige manier van meten toe te passen voor het geven van een indicatie van de gebruiksoppervlakte. De Meetinstructie sluit verschillen in meetuitkomsten niet uit, door bijvoorbeeld interpretatieverschillen, afrondingen of beperkingen bij het uitvoeren van de meting.
Deze informatie is door ons met de nodige zorgvuldigheid samengesteld. Onzerzijds wordt echter geen enkele aansprakelijkheid aanvaard voor enige onvolledigheid, onjuistheid of anderszins, dan wel de gevolgen daarvan. Van toepassing zijn de NVM voorwaarden.
–
Woningtour:
Kenmerken
| aantal kamers: | 6 kamers 5 slaapkamers |
| aantal badkamers: | 2 badkamers |
| aantal woonlagen: | 3 woonlagen |
Energie:
| isolatie: | Dubbel glas |
| verwarming: | CV ketel |