Nieuwbouw Made De Kastanjelaan
Er is weer woningnieuws op het gebied van de Nieuwbouw: In de Kastanjelaan in Made komen op zeer korte termijn woningen in de verkoop! Althans als de nieuwsberichten kloppen vanuit Maas Jacobs. Er is een website gelanceerd waar je je zelf kunt inschrijven om op de hoogte te worden gehouden: Kastanjelaan Made.
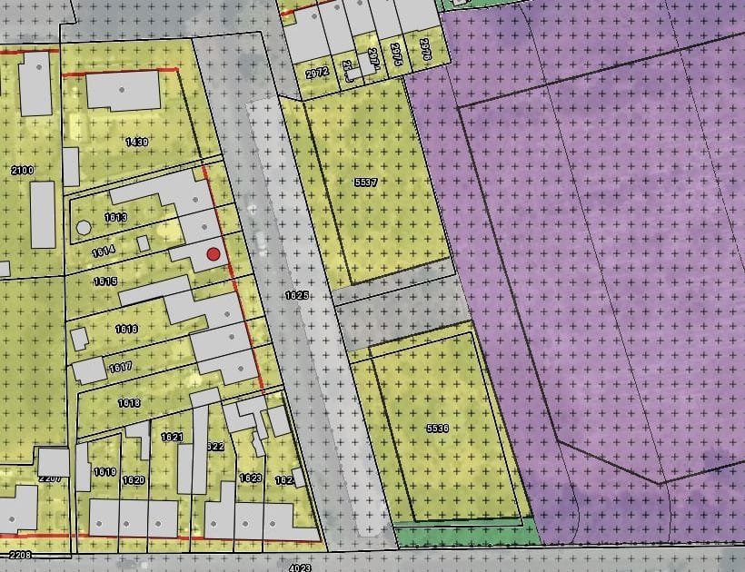
Een fraai project van 13 nieuwbouw woningen in Made
Op dit moment is de informatie nog heel summier. Er is bekend dat er 13 rij woningen worden gebouwd. Het is gelegen aan de voormalige Pinda fabriek aan de Kastanjelaan (zuid-Oostzijde van het project).
Er is een op woensdag 9 oktober van 17.30 uur tot 19.30 uur in Sociaal Cultureel Centrum De Mayboom, Wees er dus bij!
Heb je verkoopplannen?
WIl je je huis verkopen? Neem gerust contact met ons op en we komen graag bij je langs voor een gratis taxatie van jouw huis.
( Je wordt enkel op de hoogte gehouden van het laatste nieuws op de woningmarkt en ontwikkelingen.
Wil je je inschrijven als woningzoeker? Dat kun je hier doen )
Kopje koffie drinken en gratis taxatie?
Neem nu contact met ons op:
Telefoon: 0162 - 693434
Whatsap / SMS / Bellen: 06 - 2745 3524
Mail naar: [email protected]
Jouw eigen NVM-aankoopmakelaar
Een huis kopen is een grote stap. Zeker in deze drukke woningmarkt. Er kunnen veel haken en ogen zijn en je kunt zomaar voor verborgen gebreken te komen staan. Wij helpen je graag om in dit proces te begeleiden zodat je zeker weet dat het goed zit! Een NVM aankoopmakelaar heb je dus nu gevonden!
Schakel ons nu in als aankoopmakelaar en u krijgt een gratis bouwkundige keuring!
Hypotheek regelen
Wij zijn gespecialiseerd in het verkopen, aankopen en taxeren van huizen. Het financiele gedeelte is een vak apart. Wij hebben vele contacten met hypotheekadviseurs en banken in ons werkgebied die dit perfect voor jou kunnen regelen. Wij helpen je graag om een gesprek te regelen met de juiste persoon.
Zelf jouw huis verkopen
Je bent van plan om jouw huis te verkopen. Je wilt dit graag zelf doen, met een beetje hulp van een professionele makelaar. Wij helpen je graag in dit gehele proces. Je bent bij ons volledig vrij in de keuze, je regelt alles zelf, of wij nemen je al het werk uit handen. Dat doen we graag.

